Page top

NY5□□-1

工业用PC平台NY系列IPC机械控制器

NY5□□-1

实现了控制演进和信息化创新融合的新一代工业用PC

NY000-AS02于2018年11月底订货截止。NY5□□-1系列部分产品预定于2021年9月底订货截止。

(单位:mm)

工业BOX PC

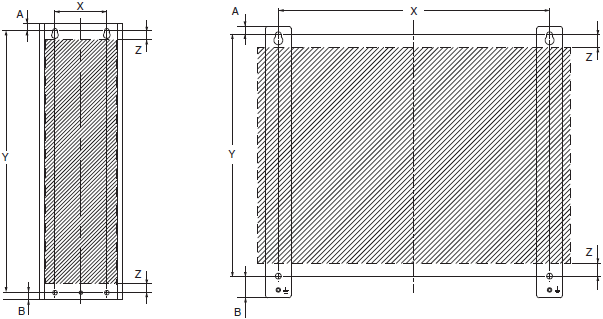
NY5□□-1 外形尺寸 1
NY5□□-1 外形尺寸 2

固定件规格

将BOX PC安装到本固定件上,用固定件进行功能性接地。
用直径4~5mm的金属螺丝安装固定件。
纵向安装以及壁挂时的安装螺丝位置:

NY5□□-1 外形尺寸 3

工业平板PC

NY5□□-1 外形尺寸 4
NY5□□-1 外形尺寸 5

* 面板的最小厚度因面板材料而异。